跳至內容
元朗劇院
康樂及文化事務署
香港品牌
GovHK 香港政府一站通
English
|
简体中文
搜尋
搜尋
搜
網頁指南
聯繫我們
康文署
A
A
A
按“Tab”進入菜單
主頁
關於我們
簡介
開放時間
位置圖
聯絡我們
設施
演藝廳
大堂展覽場地
舞蹈室
排演室
演講室
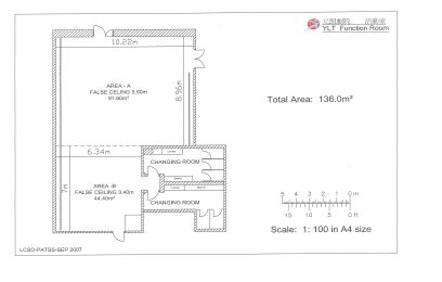
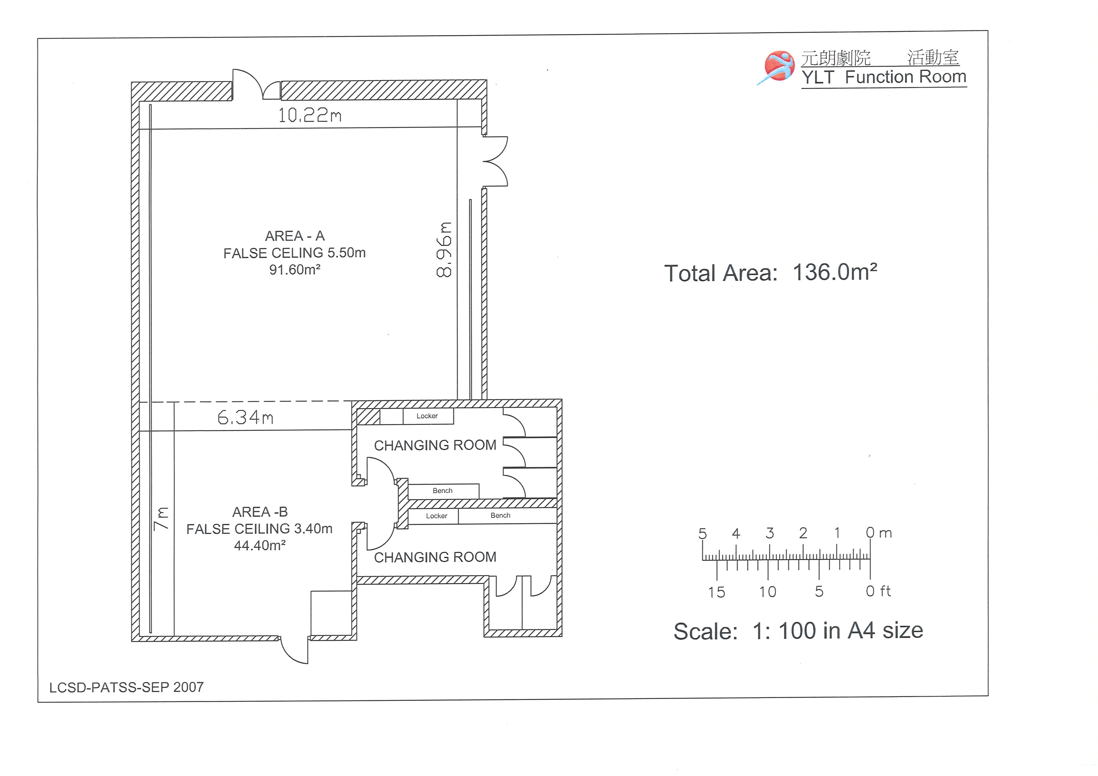
活動室
租用資料
租用資料
為非牟利團體提供的特惠場租計劃
服務
售票處
無障礙設施
餐飲服務
康文署電子雜誌
節目
每月節目表
免費訂閱每月節目表
文化節目搜尋
十八有藝 — 社區演藝計劃
康文署寓樂頻道 - 青年專頁
康文署寓樂頻道 - 中國歷史文化系列
場地伙伴
香港梨園舞台
主頁
>
劇院設施
>
活動室
> 活動室平面圖
活動室平面圖
« prev
next »
Top 回到頂